New Art Gallery

18399_SRAG_Concept Pres (Low Res)-page-005.jpg
 

The Stanthorpe Art Gallery is in need of a larger building. The process has started to look for funding opportunities, locations and designs for development of a new gallery.

Ideas stated here are at a concept stage.

From the Gallery Director

Hi Folks we are always being asked about a “new gallery,” so we decided to add some information here to help everyone understand where we are with regards to this. Presently there is a Q & A below, and the plans that we have had drawn up to help with our grant application. We will be uploading more information as we go along. 

I often spruik about this amazing gallery and many visitors are astonished at the size of the gallery and our collection. We are very lucky to have this space. But really a new gallery is about space! We are just becoming too big for the walls that enclose us. I hope the information helps answer some of your questions but if you would like to have a chat please drop in.

- Mary Findlay


 

Q&A

Q. Why should the council build a new art gallery?

A. The current gallery has far outgrown the needs of the community and of the gallery that existed when the building was first built. The collection has grown considerably and there is not sufficient wall or cabinet space to exhibit it as well as show other exhibitions at the same time. The one and only room downstairs is too small for the courses and classes that people want to go to. The storage area for our very valuable collection is way too small and poses an extreme fire risk as it contains all the electrical switchboards for the building. There is also a risk to works while moving them in and out because of the confined and congested space.

Q. How valuable is the collection?

A. Just under four million dollars at a recent valuation.

Q. Why not just build a new library and expand the gallery into the library space?

A. The council initially proposed this option, but the community made it very clear that they didn’t want any changes to the library. Building a new Gallery will allow the Library to expand into the current Gallery space.

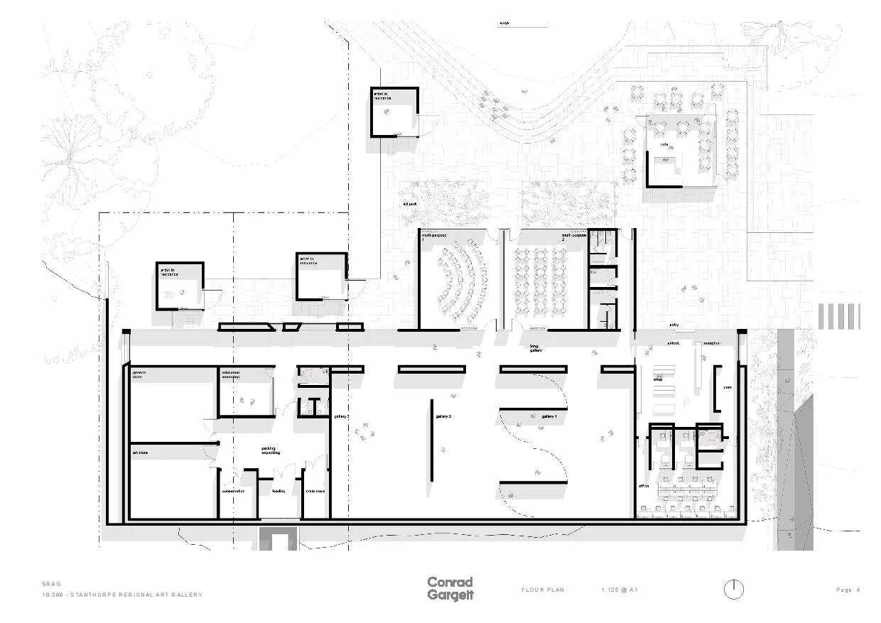
Q. Have you engaged an architect?

A. The committee has engaged Conrad Gargett to draw up a Concept Design to be used for consultation with the wider community and as part of the application process for grant funding. This company was responsible for the design of our much appreciated Queensland College of Wine and Tourism.

We have on display at the Gallery the initial concept design.

Q. What if de-amalgamation goes ahead?

A. The Granite Belt Community Association Inc. highlighted in their proposal to de-amalgamate that, “Investment in community infrastructure that showcases Stanthorpe’s incredible assets – such as funding for the Art Gallery to showcase the collection and underpin a new creative economy that can help retain visitor attraction and develop a more diversified local economic base”.

Q. How much will building a new Gallery cost?

A. The council have made it quite clear to the art gallery committee that they will be totally relying on grants from the state and federal governments to fund the design and construction. This grant money is for projects such as this and in no way takes money away for drought relief or other very important funding for our community. The gallery under its strategic plan is committed to being a viable and sustainable economic organisation. For its part, the art gallery management committee has agreed to add up to $250,000 to the funding pot.

Q. Shouldn’t council fix Stanthorpe’s water supply problems rather than spend money on a new art gallery?

A. Water security is very important and fundamental to the livelihood of this community. But planning for the future is also really important. As we know from places like Hobart, Mona has really changed the income from tourist dollars. A new gallery would be an investment for the future. Stanthorpe Regional Art Gallery has everything in place for a new gallery: A wonderful collection valued at just under 4 million dollars and the 900 pieces include some very famous artists such as Margaret Olley, Charles Blackman, William Robinson, and Picasso, along with many other well-known Australian and European artists. It also has a very committed staff, a strong membership, 63 active volunteers and 14,000 visitors per year which makes the existing gallery a valuable public asset. As mentioned above, this project would be funded from federal and state grants - not from SDRC funding.

Concept for new Gallery